
Notos
A modern home in harmony with the hilly terrain.
Scroll for more
Overview

use
Residential
type
Residence
status
-
area
200 m²
year
2021
location
Southern Corfu
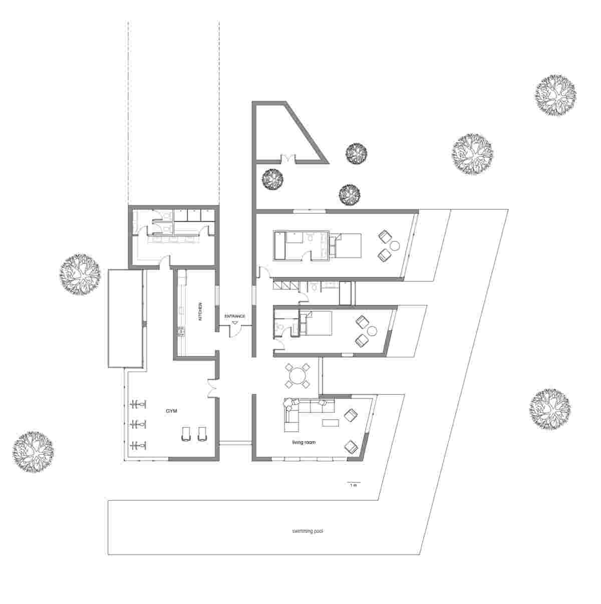
Composition
Notos is a contemporary residence with a flat, green roof that integrates with the surrounding landscape. Positioned near the sea, it is designed to maximize unobstructed views to Epirus coast. The architectural approach follows a minimalist framework, emphasizing sustainability, material efficiency, and spatial clarity. The structure is embedded within the hilly terrain, establishing a deliberate relationship between built form and topography. Its restrained aesthetic and strategic use of natural elements create an atmosphere of stillness and cohesion, emphasizing a profound connection to its surroundings.
